
项目鸟瞰图
蕙澜月华里项目由绿城开发,地块于2025年3月28日出让,成交楼面价47888元/㎡,溢价率22.35%。项目容积率2.2,总建筑面积3.2万方,规划6幢高层住宅,预计首开4#、5#、6#楼。
文/好地评论 陆盈
随着新楼盘的陆续入市,杭州多个板块价格体系进行重构。上个月,奥映鸣翠府首开,8.7万的首开均价打开了世纪城奥体板块的价格天花板。
本月,位于钱江新城二期的绿城蕙澜月华预计首开三幢楼,78套房源,是绿城在板块内的第三个“月华系”产品,被业内称为月华3.0,该楼盘是钱二在售、待售项目中位置最优的,接下来开到多少价格,将会树立板块定价的新标杆。

钱江新城二期板块内在售、待售项目
限价时代,钱二新房最高价是69800元/㎡(江河汇,杭州IFC),最低价是52000元/㎡(靠近九堡方向,潮语鸣翠轩)。越靠近江河汇和钱塘江越贵,越靠近九堡和远离钱塘江越便宜。南侧沿之江东路长约5公里,价差约为16000元/㎡,相当于每公里的价差是3200元/㎡。
今年6月,招商杭序府在拿地5.7个月后首开,将钱二东北方向的价格从52000拉到了59000元/㎡,抬高了7000元/㎡,重塑了钱二低价位段的价格体系。
而靠近江河汇方向,今年6月,绿城芝澜月华交付,虽未办出房产证,但已有20多套房源挂牌,房东预期售价都在8.5万以上,这与栖江揽月轩目前7.3万/㎡ 的挂牌均价,普遍不到7万的成交价格,预期大幅跳涨。(由于均价6.6万/㎡,成交房源低于买入价的情况普遍,所以实际二手房均价低于6.6万)
绿城玉澜月华宣传力度之大,被业界认为是为绿城蕙澜月华首开造势。接下来的首开定价,也将直接打开板块新房定价的天花板,重塑钱二中北部价格体系。

目前关于绿城“月华系3.0”的产品消息比较少,基本上是:户型面积188-280㎡,临时展厅已开放,示范区预计8月底开放,这与8月底要开盘的节奏比,显得有点仓促,今年3月底拿地,5个月开盘,在单价6万以上的楼盘中,属于比较快的,这或与绿城想要加快回款的想法有关。
目前的市场,品质大幅提升的高端改善产品,定价可以大幅提升。
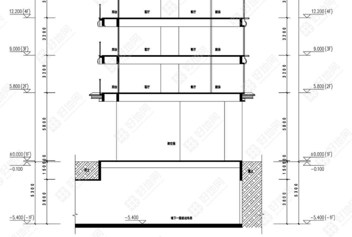
1.从硬件条件看,蕙澜月华架空层5.8米,层高3.2米,相比芝澜月华只提高了0.1-0.2米,非常有限;但是比栖江揽月轩4.1米架空和3米的层高,还是提升了不少。
其次项目容积率2.2,是11-14层小高层、高层,比芝澜月华相对舒适度更高一些。

项目4#楼剖面图
2.从项目区位看,地块北面靠近艮山西路高架,与高架距离仅50米,由于整个盘体量小,所以受到高架的影响更大。

项目与北侧高架路距离示意图
3.外立面看,延续了月华系经典的无柱转角设计,以金属线条勾勒轮廓,搭配弧形转角玻璃幕墙。
4.公区配套层面,板块内月华系项目市场反馈较好,尤其是玉澜月华公区是区域标杆;蕙澜月华预计风格与此类似,但总体量只有玉澜月华的一半,功能上会缩减。
5.户型上,蕙澜月华户型区间为188-280㎡,定位低于玉澜月华(212㎡起步,还有288、388㎡)。
由于体量规模小,蕙澜月华面积段和总价定位更低一些,目前看,产品与风格较限价产品提升不大,预计在精装标准上会有所提高。
项目首开面临的有利形势是:芝澜月华交付的口碑不错,业主挂牌出手的预期高,但是能否真的达到二手销售的预期,还需要打个问号。
不利的情况是:板块内的二手房销售去化较差,亏掉利息不说,连本金都亏。以栖江揽月轩为代表,不少房源是“破发”成交的,当时摇号买房的投资行为被证伪了。
由于项目位于钱二的中北部,北侧靠艮北新城,定价将存在比较大的分歧:
1.业内不少声音认为,它的价值是不如安琪儿的,现如今滨江安琪儿项目不靠高架的房源均价大约在7万以上。蕙澜月华略低于安琪儿,按照7万左右的首开定价,较为合理。
2.当然也有偏好钱二的购房者认为,钱二是纯粹的高端改善板块,未来潜在供地中优质地已不多,目前次新二手房破发主要是因为限价房品质不足,真正改善的价格天花板可以更高一些。

钱江新城二期板块潜在供应地块
本网评论员认为:
钱二的豪宅板块基调已经形成,但是不断破发的次新二手房行情,是板块当前定价最大的不利条件。
招商杭州序在品质大幅提升情况下,才有比旁边限价盘高出7000元/㎡的涨幅。
绿城蕙澜月华在产品上未多做提升的前提下,想要实现价格的大幅跳涨难度不小,首开上涨至7.3万(比限价时期提高7000元/㎡),将是一个市场观察值。高于7.3万,说明市场对于钱二非沿江区域的市场接受度高,板块定价站上了杭州次级梯队。