好地网11月21日讯(研究员 周吉羊) 近日,吴中区木渎2022-WG-51号地块发布规划公示,拟建纯高层住宅。

鸟瞰图
2022年10月31日,惠润置业以119779万元低价竞得该地块,楼面价15500元/㎡。
建筑单位为苏州铂润房地产置业有限公司,其中惠润置业占股98%,星河湾占股2%。
地块用地面积42931.6㎡,容积率1.8,总建筑面积114171.67㎡,计容建筑面积77276.88㎡。

鸟瞰图
根据公示,项目将打造11幢14-21F的高层和1幢2F的配套用房,内部设有中央泳池和大型景观水系。
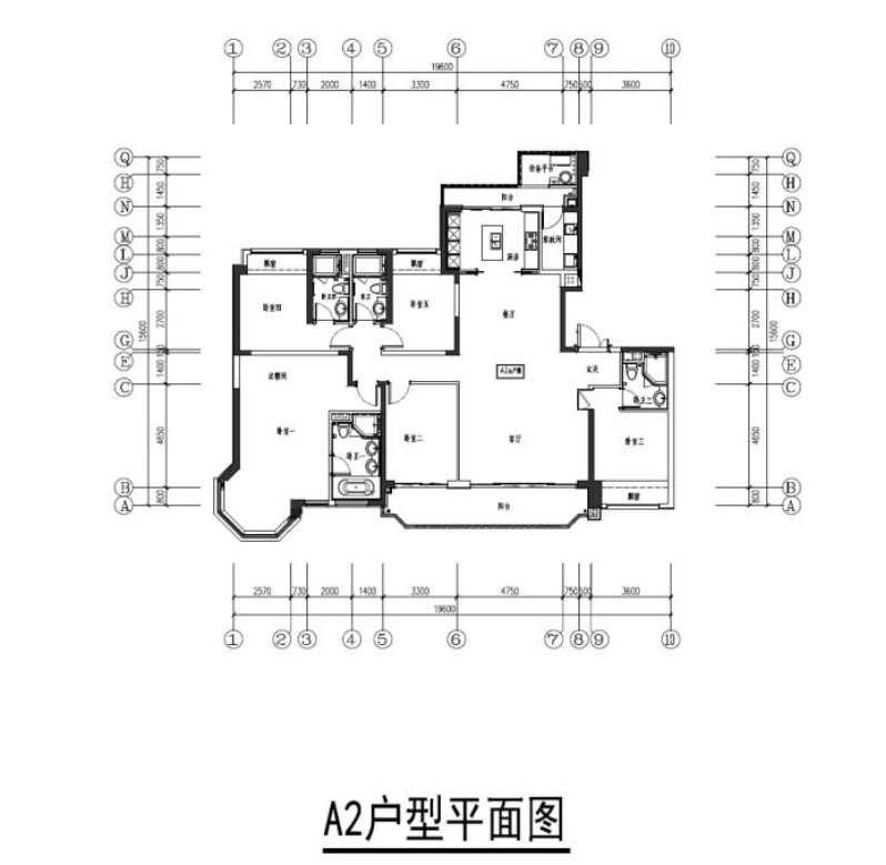
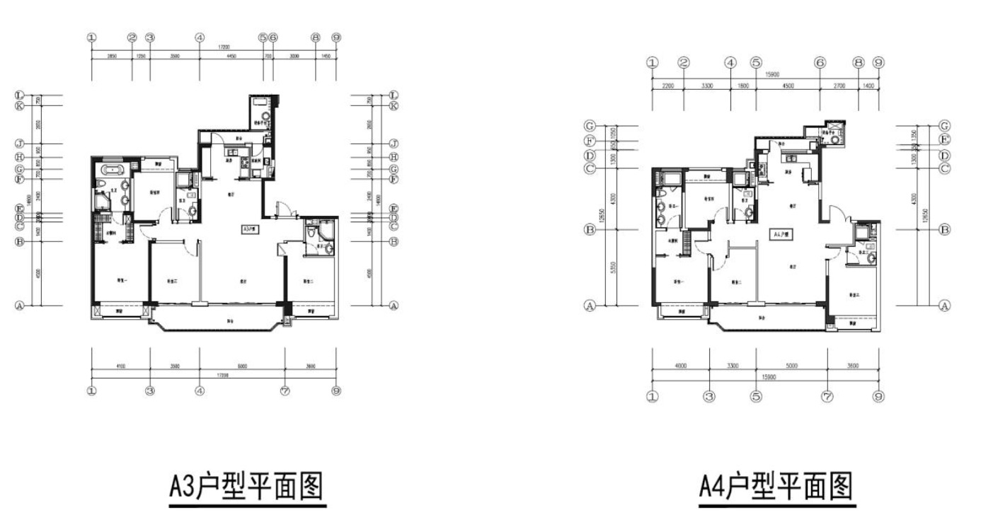
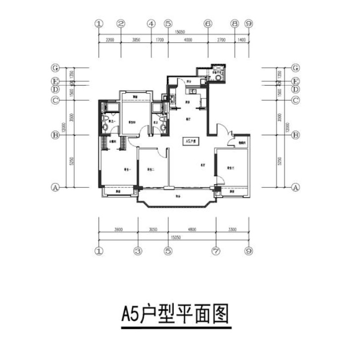
本次一同公示的还有5种户型图:
A1户型:五室两厅四卫,四开间朝南,南北双阳台,南阳台面宽8.5米,南向双卧采用套房设计为,带独卫和衣帽间。

A2户型:五室两厅四卫,四开间朝南,南北双阳台,南向的主卧配有独卫和衣帽间以及360度观景飘窗,次卧配有独卫。

A3、A4户型:四室两厅三卫,四开间朝南,南向设有三间卧室,其中双套房设计。

A5户型:四室两厅两卫,四开间朝南,主卧带有独卫与与衣帽间,入户设有独立空间,可灵活变换使用。

地块紧邻地铁5号线大治桥站,出行便利;周边有南行实验中小学及附属幼儿园、木渎实验小学、木渎实验中学、木渎高级中学,大运城、花样城、东门町、天虹商场、悠方,木渎人民医院等各类配套。

地块位置图