好地网1月9日讯(研究员 周吉羊) 近日,金融街吴中太湖新城2023-WG-99地块发布规划公示,拟建18幢7-10F纯洋房住宅和1幢2F的物业配套用房。

鸟瞰图
2023年12月23日,金融街&吴中经开国资以12.3亿竞得该地块,楼面价16000元/㎡。其中,金融街股权占比80%。
此次公示,距离拿地仅隔半个月。
地块用地面积48181.6㎡,容积率1.6,总建筑面积115768.83㎡。
1#、10#、19#、20#、21#、22#、23#:10层;
2#、5#、7#、15#:7层;
8#、9#、12#、13#、16#、17#、18#:8层。
本次一同公示的还有2大户型:
1、2、5、10、19、20、21、22、23#为两梯四户,户型三室两厅两卫,三开间朝南,全屋5飘窗,主卧套房设计,带独立衣帽间和卫生间。

户型图
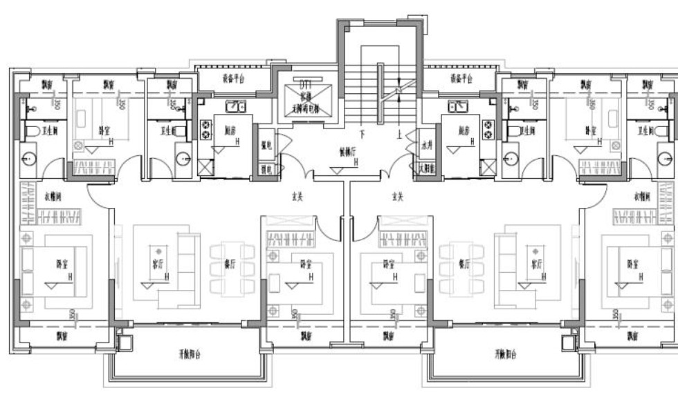
8、9、12、13、17、18#同样为两梯四户,户型四室两厅两卫,四开间朝南,LDKB一体化设计,主卧搭配独立衣帽间和卫生间,整体格局方正通透。

户型图
地块位于吴中太湖新城,距离地铁4号线木里站不到200米,交通便捷,南侧1.5公里范围内是太湖,环境优越。
板块内有苏州北美国际高级中学、华东师范大学苏州湾实验小学、太湖新城公立小学等教育资源,同时拥有瑞华医院、永旺梦乐城等配套。

地块周边配套