好地网3月10日讯(研究员 周吉羊) 近日,无锡一大批项目发布规划公示,涉及仁恒夹城里地块、蓝城东北塘低密地块2个商品住宅项目以及1个商业办公楼、2所学校。
仁恒夹城里项目
2022年7月二批次中,仁恒等联合体通过摇号,以284521万元竞得该地块,楼面价21000元/㎡,溢价率10.52%。
项目位于梁溪区迎龙路与清扬路交叉口西南侧,建设单位为无锡安恒置业有限公司,用地面积约76493.9㎡,容积率约1.83,总建筑面积约21.0万平方米,其中地上建筑面积约13.5万平方米。

总平图

鸟瞰图
根据公示,项目规划18幢高层住宅,其中北侧A地块拟建11幢15-21F的住宅,南侧D地块拟建7幢14-16F的住宅。
地块正好位于“龟背壳”沿线中心主城区,北侧紧邻体育公园及古运河,周边配套几乎是“绝版资源”。
根据出让文件,配套教育资源为周边新建规划幼儿园(拟由无锡市侨谊幼儿园承办)、新建一所九年一贯制学校(小学部拟由无锡市连元街小学承办、中学部拟由无锡市侨谊实验中学承办)。

地块位置图
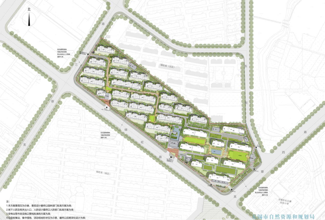
蓝城东北塘低密项目
2022年5月一批次中,蓝城等联合体以63280万元底价竞得该地块,楼面价8700元/㎡。
项目位于锡山区东北塘街道锦旺路北、芙蓉三路东,建设单位无锡兰亭四季置业有限公司,用地面积约 60615㎡,容积率1.2,总建筑面积约11.92万平方米,其中地上建筑面积7.42万平方米,地下建筑面积约4.5万平方米。

总平图

鸟瞰图
根据公示,项目将打造31幢3-9层低密叠墅、洋房。
地块位于东北塘核心地段,往西500米为沪宁高速,往北200米即达锡港路。
东南侧紧邻东北塘实验小学、周边还有云林实验小学、东北塘中学、新开河小学等众多学区。医疗方面有广仁医院等,商业方面有八佰伴生活广场、圆融广场(在建)等。

地块位置图
梅里商业运营管理梅村商办项目
2022年7月28日,无锡市梅里商业运营管理有限公司以4538万元底价竞得该地块,楼面价1407元/㎡。
项目位于新吴区梅村街道泰伯大道与新锦路交叉口东北侧,建设单位为无锡市梅里商业运营管理有限公司,用地面积17915.7㎡,总建筑面积约4.2万平方米,其中地上建筑面积约3.2万平方米,地下建筑面积约1万平方米。

总平图

效果图
根据公示,项目拟建1幢酒店和3幢商业办公楼。
酒店11F,包含可容纳70桌宴会大厅的餐饮区域和白领、商旅的精品客房;商业办公楼3F,1楼为餐饮、娱乐的复合型商业,2-3楼为办公用房。

地块位置图
梅里中学二校区新建工程项目
项目位于梅村街道梅西路与梅苑路交叉口西北侧,建设单位为无锡市新吴区重点建设项目管理中心,用地面积约92935㎡,其中一校区可建设用地面积约56171㎡,二校区可建设用地面积约36764㎡。一、二校区总建筑面积约7.5万平方米,本次新建建筑面积约5.6万平方米。

总平图

鸟瞰图
地块用地性质为初中用地,已建有5F教学楼、3F图书馆和3F食堂。本次新建2幢5F普通教学楼、1幢5F专业教学楼、1幢4F专业教学楼、1幢3F报告厅、1幢2F体育馆以及食堂扩建(1F)。
校园内部还有400米运动场、篮球场、乒乓球区等,东南角有7000㎡街角公园。

地块位置图
清晏路与清舒道交叉口东南侧规划中学新建工程(一期)项目
项目位于无锡经济开发区清源路以北,贡湖大道以西,清晏路以南,清舒道以东,建设单位为江苏无锡经济开发区发展中心,用地面积约4.1公顷,本次报审方案为一期文体中心,一期总建筑面积约0.37万平方米。

总平图

鸟瞰图
地块为中小学用地,本次公示的文体中心为2F,建筑高度13.8米。此外从平面图可以看到,还有3幢5F教学楼和1幢公用教室,1幢2F的行政楼(多功能厅、食堂)。

地块位置图